Planos de Instalaciones Sanitarias y Eléctricas

  1. Home
  2. Servicios
  3. Arquitectura Arequipa
  4. Elaboración de Planos Arequipa
  5. Planos de Instalaciones Sanitarias y Eléctricas
PLANOS-DE-INSTALACIONES-SANITARIAS-Y-ELECTRICAS

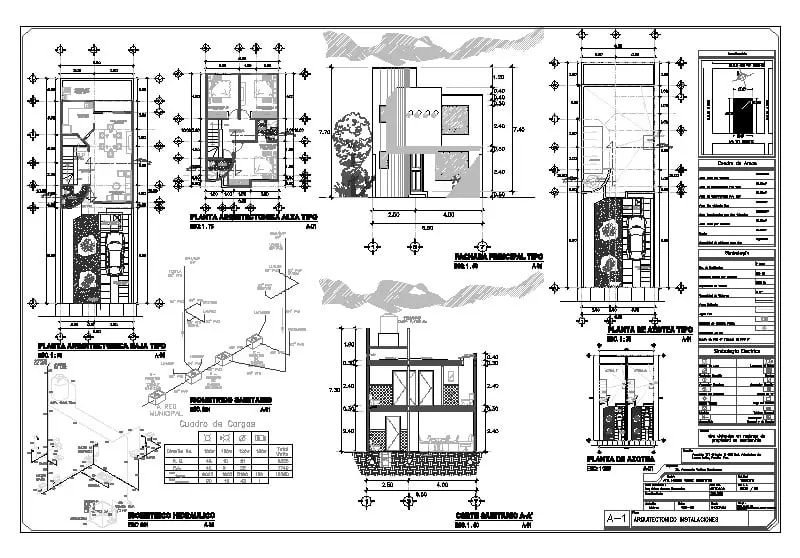
En Vértices Arquitectura-Ingeniería desarrollamos planos especializados de instalaciones sanitarias y eléctricas cumpliendo con:

  • Normativa IS.010 (Instalaciones Sanitarias) y RE.020 (Instalaciones Eléctricas) del RNE

  • Reglamentos municipales y de empresas prestadoras (Sedapal, Enel, etc.)

  • Estándares internacionales (NEC, IPC)

Nuestro

Proceso

01.

Diagnóstico Técnico

Revisión de planos arquitectónicosCálculo de demandas (caudales sanitarios y cargas eléctricas)Propuesta de rutas y ubicación de equipos

02.

Desarrollo de Planos

Diseño de redes con software especializado (Revit MEP, AutoCAD Electrical)Especificación de materiales (tuberías, cables, protecciones)Diagramas de conexión y detalles constructivos

03.

Entrega Certificada

Planos firmados por ingeniero responsableMemorias de cálculo completasArchivos editables (.DWG, .RVT) para futuras modificaciones

Quieres mas información de nuestro servicio de Planos de Instalaciones Sanitarias y Eléctricas?

cta box img-vertices-arquitectos-ingenieros
Consulta a un Ingeniero
1